
Ein Reihenhaus
Erfurt Vieselbach
kaufen
Jetzt Angebot anfordern
Reihenhaus in Erfurt-Vieselbach – Ihr neues Zuhause im grünen Stadtrand
Willkommen in Erfurt-Vieselbach, wo Ihr Traum vom eigenen Reihenhaus wahr wird. In diesem charmanten Erfurter Ortsteil entsteht ein neues Wohnquartier mit acht modernen Reihenhäusern (Neubau/Erstbezug), ideal für Familien, die stadtnah und zugleich im Grünen wohnen möchten. Idyllisches Wohnen mit Stadtanbindung, so lässt sich das Konzept treffend beschreiben: Sie genießen ruhiges Wohnen im Grünen, sind aber in nur ca. 7 km vom Erfurter Stadtzentrum entfernt. Hier finden Sie die perfekte Kombination aus erholsamer Wohnlage und städtischer Infrastruktur.
Verfügbarkeit & Preise
Wählen Sie eins der Reihenhäuser aus und sichern Sie sich Ihr Reihenhaus in Erfurt-Vieselbach!
| Grundstück | Grundstücksfläche in m² | Haustyp | Kaufpreis* | verkauft/reserviert |
| 1 | 412 | Reihenendhaus | 532.589 € | frei |
| 2 | 342 | Reihenmittelhaus | 485.589 € | frei |
| 3 | 303 | Reihenmittelhaus | 473.889 € | frei |
| 4 | 351 | Reihenendhaus | 514.289 € | frei |
| 5 | 334 | Reihenendhaus | 509.189 € | frei |
| 6 | 290 | Reihenmittelhaus | 469.989 € | frei |
| 7 | 290 | Reihenmittelhaus | 469.989 € | reserviert |
| 8 | 401 | Reihenendhaus | 529.289 € | frei |
* Preis inkl. Grundstück, Haus und Stellplatz
Fragen Sie jetzt Ihr Reihenhaus in Erfurt Vieselbach an und lassen Sie uns Ihre Hausfinanzierung individuell berechnen.
Allgemeine Informationen
Wohntyp: Reihenhaus
Bauort: Erfurt-Vieselbach, Erfurter Allee
Anzahl Bauplätze: 8
Grundstücksgröße: 290 - 412 m²
Wohnfläche: 151 m2
Projekt-Status: Erschließung ist erfolgt - derzeit: Bodenplatte, Erstbezug 2026
ZUR ÜBERSICHT "PREISE & VERFÜGBARKEIT"
Projektmerkmale auf einen Blick
- 8 moderne Reihenhäuser in 2 Gebäudegruppen
- Durchdachte Grundrisse mit offenem Wohn-/Essebereich
- Jedes Haus mit eigenem Garten zur individuellen Gestaltung
- Energieeffiziente Bauweise und hochwertige Ausstattung
- Eigene Stellplätze mit Vorrüstung für Wallbox
Idyllische Lage mit familienfreundlicher Infrastruktur

Vieselbach, im Osten Erfurts gelegen, bietet Ihnen das Beste aus zwei Welten. Einerseits profitieren Sie von der ländlichen Idylle und Ruhe eines Vorortes, andererseits von einer hervorragenden Anbindung an die Stadt: Eine Buslinie verbindet Vieselbach mit Erfurt, und die nahegelegenen Bundesstraßen B7 sowie die Autobahn A4 sorgen für schnelle Wege in alle Richtungen. Vor Ort finden sich Einkaufsmöglichkeiten für den täglichen Bedarf, und auch an die kleinen Familienmitglieder ist gedacht. So gibt es in Vieselbach einen zentral gelegenen Kindergarten mit großem Außengelände und familiärer Atmosphäre, ideal, wenn Ihre Kinder von klein auf gut betreut und mit Spielkameraden aufwachsen sollen. Auch die Grundschule im Ort wird derzeit erweitert und modernisiert, sodass Schulkinder kurze Wege und zeitgemäße Lernbedingungen vorfinden.
Kurzum: Die Lage in Erfurt-Vieselbach bietet einen familienfreundlichen Rahmen, in dem Sie sich schnell zuhause fühlen werden.
Warum Reihenhaus Erfurt-Vieselbach?
- Vieselbach verbindet die Vorzüge aus ruhiger Wohnlage und städtischer Infrastruktur
- Nur 7 km östlich vom Erfurter Stadtzentrum
- Komplette Nahversorgung im Ort: Einkaufsmöglichkeiten, Apotheke, Tankstelle
- Familienfreundliche Umgebung mit Kita und Grundschule
- Optimale Verkehrsanbindung mit Buslinie, Bahnhof sowie Nähe zu B7 und A4
Das Wohnquartier: Acht moderne Reihenhäuser für Ihr Familienglück

In diesem Neubau-Wohnquartier entstehen acht Reihenhäuser, die speziell für Familien konzipiert sind. Jedes Haus verfügt über fünf Zimmer auf drei Etagen mit ca. 150 m² Wohnfläche, Platz für Eltern, Kinder und auch ein Home-Office. Die Grundstücke variieren in der Größe, sodass Sie je nach Wunsch ein kompakteres Grundstück oder extra viel Gartenfläche wählen können (Beispiel: Grundstücksflächen von ca. 254 m² bis 364 m²). Zu jedem Reihenhaus gehören zudem zwei eigene Stellplätze direkt vor der Tür, sodass das lästige Parkplatzsuchen der Vergangenheit angehört. Selbstverständlich besitzt jedes Haus auch einen privaten Garten mit Terrasse, auf dem Sie gemütliche Sommerabende mit der Familie verbringen oder die Kinder sicher im Freien spielen lassen können.
Ein großer Vorteil dieses Projekts: Sie erwerben keinen alten Bestand, sondern einen Erstbezug. Das bedeutet, Ihr neues Zuhause ist frei von Kompromissen und Renovierungsstau: Sie ziehen in ein schlüsselfertiges, brandneues Haus ein, das nach aktuellen Maßstäben gebaut wurde. Moderne Bauweise und regionale Handwerksqualität sorgen dafür, dass Ihr Eigenheim langlebig und wertbeständig ist. Zudem genießen Sie als Käufer die Sicherheit eines festen Kaufpreises und garantierter Bauzeit, denn wir von Winkler Eigenheim-Bau GmbH & Co. KG als erfahrener Town & Country-Partner vor Ort, legen großen Wert auf Transparenz und Zuverlässigkeit.
Jetzt Ihr Reihenhaus sichern:
| Grundstück | Grundstücksfläche in m² | Haustyp | Kaufpreis* | verkauft/reserviert |
| 1 | 412 | Reihenendhaus | 532.589 € | frei |
| 2 | 342 | Reihenmittelhaus | 485.589 € | frei |
| 3 | 303 | Reihenmittelhaus | 473.889 € | frei |
| 4 | 351 | Reihenendhaus | 514.289 € | frei |
| 5 | 334 | Reihenendhaus | 509.189 € | frei |
| 6 | 290 | Reihenmittelhaus | 469.989 € | frei |
| 7 | 290 | Reihenmittelhaus | 469.989 € | reserviert |
| 8 | 401 | Reihenendhaus | 529.289 € | frei |
* Preis inkl. Grundstück, Haus und Stellplatz
Fragen Sie jetzt Ihr Reihenhaus in Erfurt Vieselbach an und lassen Sie uns Ihre Hausfinanzierung individuell berechnen.
Voll ausgestattet und zukunftssicher gebaut

Wenn Sie sich für ein Reihenhaus in Erfurt-Vieselbach entscheiden, erhalten Sie ein Rundum-sorglos-Paket. Im Kaufpreis ist bereits eine umfangreiche Ausstattung enthalten, die Ihr neues Zuhause zukunftssicher und komfortabel macht. Ihre Vollausstattung bei Winkler Eigenheim-Bau:
- Vorrüstung Photovoltaik:
Auch wenn es um Energie geht, können Sie sich sicher sein. Mit der Photovoltaik-Vorrüstung bleiben Sie flexibel und machen sich unabhängig von steigenden Energiepreisen. Dann, wenn Sie es wollen. Ausreichend Platz für einen Energiespeicher bietet Ihr Hausanschlussraum. - Wärmepumpe: Heute bereits an Morgen denken - in jedem Haus ist eine Wärmepumpe inklusive. Sie erfüllen die aktuellen Energiestandards, sparen bares Geld und reduzieren Ihren CO2-Fußabdruck.
- Massiv gebaut und gedämmt: Wir setzen auf massives Mauerwerk. Das schont nicht nur Ressourcen und Ihr Budget, sondern dämmt auch auf ganz natürlichem Weg.
- Fußbodenheizung: Warme Füße? Auch die Fußbodenheizung ist inklusive. Sie steigert nicht nur den Wert Ihres Hauses, sondern sorgt ganz nebenbei noch für echtes Wohngefühl.
- Vorrüstung E-Auto: Wir denken nicht nur mit, sondern setzen auch direkt um. Alle unsere Häuser haben eine E-Auto Vorrüstung. Damit sind sie mobil, flexibel und bleiben beweglich.
- Rollläden: Ihr Haus sorgt nicht nur für ausreichend Sicherheit, sondern auch für einen sommerlichen Wärmeschutz. Bereits inklusive sind die Rollläden.
- Sanitärausstattung: Ihre Badezimmer sind voll ausgestattet. Dazu gehört auch eine bodengleiche Dusche.
- Elektroausstattung: Wir bieten Ihnen ein wenig mehr. Ihre Haustechnik sorgt für einen energiegeladenen Alltag, behagliche Wärme und umweltschonendes Wohnvergnügen.
- Schlüsselfertig*: Ihr Haus wird Ihnen, am Ende der Bauzeit, schlüsselfertig übergeben. Sie richten sich ganz nach Ihrem Geschmack ein.
- Sicher gebaut: Ihr persönlicher Hausbau-Schutzbrief schützt Sie mit einem garantierten Festpreis, einer Bauzeitgarantie und transparenten Baukosten.
*Ohne Tapezier- und Bodenverlegearbeiten
Mit einem Town & Country Massivhaus setzen Sie auf regionale Bauqualität und genießen zugleich umfassende Sicherheitsleistungen. Informieren Sie sich jetzt zu unseren verfügbaren Reihenhäusern in Erfurt-Vieselbach und sichern Sie sich 1 von 8 Häusern, das Sie 2026 Ihr Zuhause nennen können.
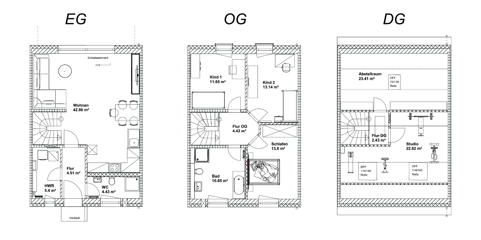
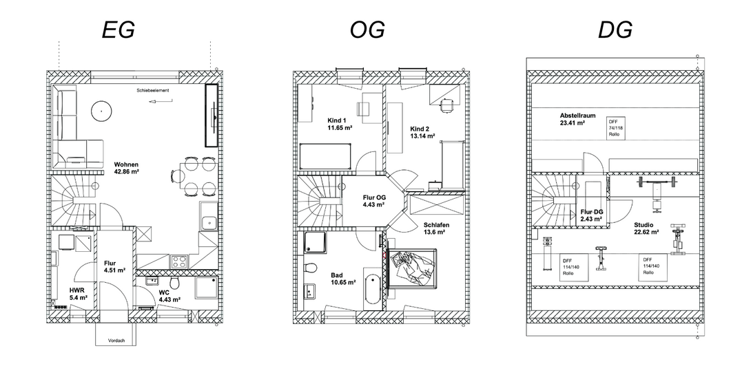
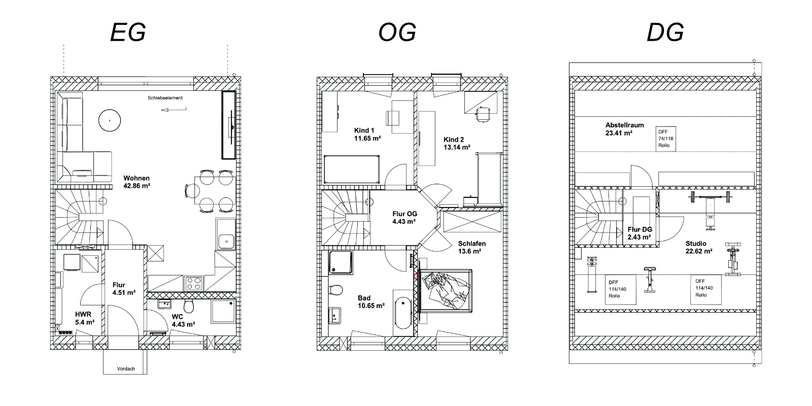
Grundrisse im Überblick

Wohnkomfort auf drei Etagen – so lebt es sich im Reihenhaus

Ein Reihenhaus in Erfurt-Vieselbach bedeutet Lebensqualität für die ganze Familie. Die durchdachte Architektur erstreckt sich über drei Ebenen und schafft ein großzügiges Raumgefühl.
- Im Erdgeschoss empfängt Sie ein offener Wohn- und Essbereich, das Herzstück des Hauses. Große, bodentiefe Fenster fluten den Raum mit Licht und bieten einen freien Blick in Ihren eigenen Garten. Hier können Sie kochen, essen und mit der Familie gemütliche Abende verbringen, während drinnen wie draußen alles miteinander verschmilzt.
- Im Obergeschoss finden Sie Ruhe und Rückzug. Ein gemütliches Elterschlafzimmer, ein helles Kinderzimmer und sogar ein zusätzliches Gäste- oder Arbeitszimmer bieten vielfältige Nutzungsmöglichkeiten für Ihre Familie. Jeder hat sein eigenes Reich, und doch sind alle unter einem Dach vereint. Das Badezimmer auf dieser Etage, mit Dusche, Wanne und Fenster, sorgt dafür, dass Hektik am Morgen der Vergangenheit angehört.
- Das Dachgeschoss ist ein echtes Highlight: Hier öffnet sich ein großzügiges Studio, das das Herz höher schlagen lässt. Ob als Hobbyraum, Home-Office, Rückzugsort für Teenager oder Atelier – dieser offene Wohnraum unterm Dach erfüllt Träume von Freiheit und Kreativität. Zusätzlich gibt es im Dachgeschoss noch praktischen Stauraum, damit Sie all Ihre Habseligkeiten ordentlich verstauen können.
- Auch draußen genießen Sie höchsten Wohnkomfort: Auf Ihrer sonnigen Terrasse können Sie den Tag bei einem Kaffee starten oder abends beim Grillen ausklingen lassen. Der Garten bietet Platz für Blumenbeete, eine Sandkiste oder sogar ein kleines Trampolin – hier findet Familienleben sowohl drinnen als auch unter freiem Himmel statt. Und dank der netten Reihenhausnachbarschaft müssen Ihre Kinder nie lange nach Spielkameraden suchen.
Was unsere Bauherren sagen
Town & Country Haus - Winkler Eigenheim-Bau GmbH & Co. KG
Basierend auf 111 Bewertungen
Wir haben vor 15 Jahren mit der Fa. Winkler Eigenheim das Lichthaus 121 gebaut. Wir können auch nach dieser langen Zeit behaupten, dass wir alles genauso wieder machen würden. Vom ersten Gespräch mit dem Verkäufer, bis zur Abnahme, fühlten wir uns sicher und kompetent aufgehoben.
Jetzt Ihr Reihenhaus in Erfurt sichern – Erstbezug für Ihre Familie
Die Chance auf ein neues Eigenheim in Erfurt-Vieselbach ist einzigartig: Nur acht Familien werden hier ihr Glück finden, und viele der Häuser sind sicher schnell vergeben. Wenn Sie davon träumen, mit Ihrer Familie in ein nagelneues, komfortables Zuhause einzuziehen, sollten Sie nicht zögern. Greifen Sie jetzt zu!
Informieren Sie sich noch heute über „Reihenhaus Erfurt-Vieselbach“ und lassen Sie sich unverbindlich beraten. Wir stehen Ihnen gerne zur Verfügung, um alle Fragen zu Lage, Hausausstattung und Kaufprozess zu beantworten. Nutzen Sie diese Gelegenheit, ein erschwingliches Reihenhaus in Erfurt zu erwerben, anstatt weiter nach Bestandsimmobilien zu suchen, die oftmals Kompromisse erfordern.
Ihr neues Zuhause wartet auf Sie: Kontaktieren Sie uns für weitere Informationen oder einen persönlichen Besichtigungstermin. Erfüllen Sie sich den Traum vom Eigenheim in Erfurt-Vieselbach – familiengerecht, modern und zum Wohlfühlen! Jetzt anfragen und rechtzeitig Ihr Reihenhaus sichern!
Mehr erfahren
Nehmen Sie jetzt Kontakt mit uns auf.
Wir freuen uns auf Ihre Anfrage.
Ansprechpartner: Stephan Reinhardt
Telefon: +49 0 361 / 5657650
E-Mail: info(at)winkler-eigenheim.de










